- 株式会社ダブルオレンジ
- 土地をエリアから探す
- 日野市
- 石田
- 日野市石田1丁目 建築条件付き売地
土地
日野市石田1丁目 建築条件付き売地
情報更新日:2026/04/16 次回更新予定日:2026/04/30 取引条件有効期限:2026/04/30
所在地東京都日野市石田1丁目[周辺地図]
交 通多摩モノレール「万願寺」駅徒歩7分






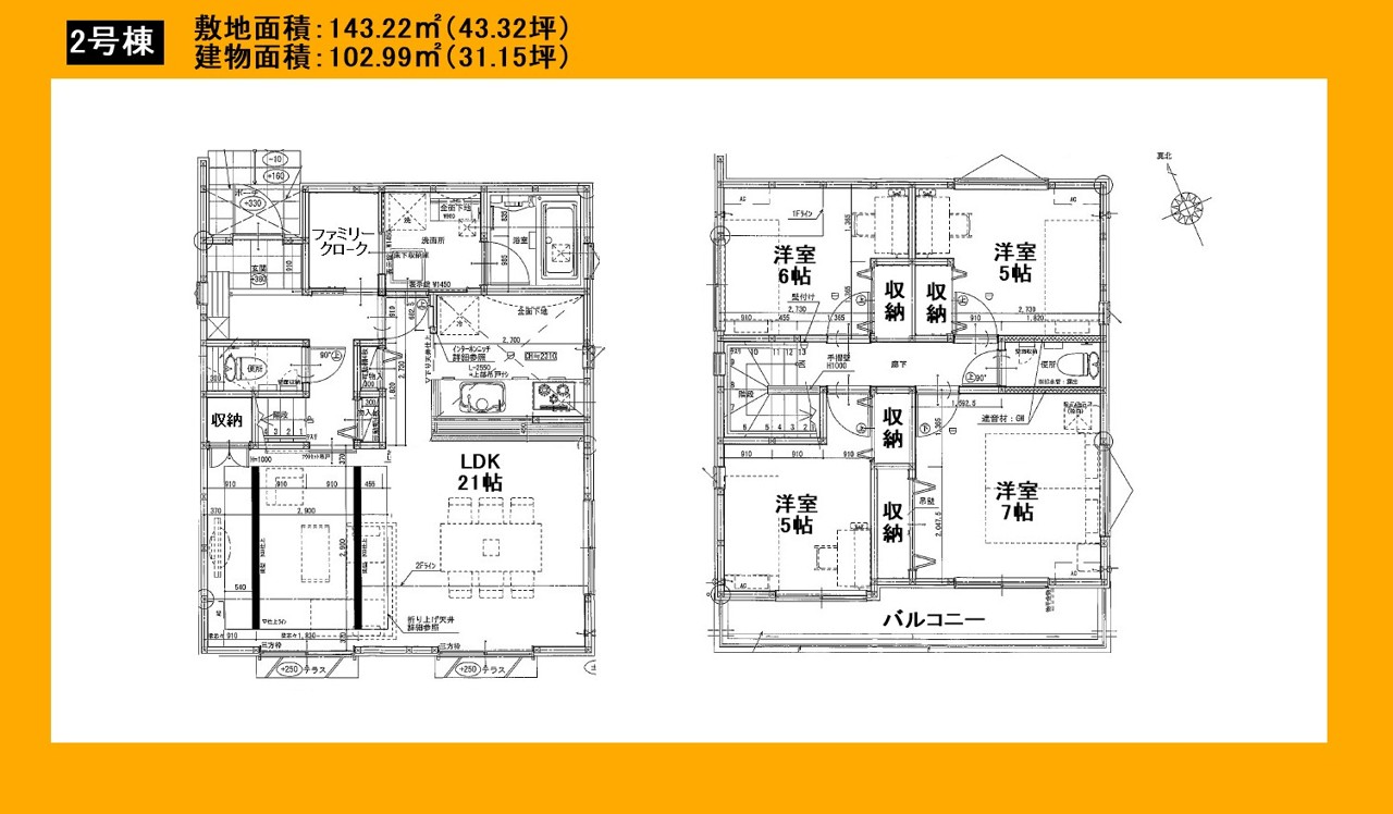
●区画整理地内●全区画43坪超●前面6M公道の整形地●徒歩圏内に商業施設多数あり、住環境充実!●4号棟参考プラン 敷地面積143.20平米 土地価格3,880万円・建物102.67平米 価格1,800万円、総額5,680万円(税込)
担当スタッフより

- 江里俊一
- ●区画整理地内●全区画43坪超●前面6M公道の整形地●徒歩圏内に商業施設多数あり、住環境充実!●4号棟参考プラン 敷地面積143.20平米 土地価格3,880万円・建物102.67平米 価格1,800万円、総額5,680万円(税込)
各棟情報
物件詳細情報
物件No.20000429730
| 所在地 | 東京都日野市石田1丁目 | ||
|---|---|---|---|
| 交通 | 多摩モノレール「万願寺」駅徒歩7分 | ||
| 土地面積 | 143.2m² ~ 143.22m² 公簿 | ||
| 販売区画数 | 3区画 | 総区画数 | 全4区画 |
| 用途地域 | 第一種低層住居専用地域 | 建ぺい率 | 50% |
| 容積率 | 100% | 都市計画 | 市街化区域 |
| 建築条件 | 建築条件付 | 地目 | 宅地 |
| 最適用途 | 住宅用地 | 現況 | 造成中 |
| 権利種類 | 所有権 | 接道 | 北側6M公道に接道 西側6M公道に接道 |
| 小学校区 | 日野市立潤徳小学校(1140m) | 中学校区 | 日野市立三沢中学校(1600m) |
| 取引態様 | 媒介 | ||
| 設備 | 公営水道、本下水、都市ガス | ||
こだわり項目
区画整理及び分譲地角地整形地平坦地緑豊かな住宅地閑静な住宅地保育園・幼稚園800m以内コンビニ400m以内公園800m以内
- ※価格は物件の代金総額を表示しており、消費税が課税される場合は税込み価格です。(1,000円未満は切り上げ。)
税率は引き渡し時期により異なりますので、各物件の詳細につきましてはお問い合わせください。 - ※敷地権利が借地権のものは価格に権利金を含みます。
- ※制作中に内容が変更される場合もありますので、あらかじめご了承ください。
- ※購入の前には物件内容や契約条件についてご自身で十分な確認をしていただくようにお願いいたします。
- ※完成予想図はいずれも外構、植栽、外観等実際のものとは多少異なることがあります。
- ※CG合成の画像の場合、実際とは多少異なる場合があります。
周辺地図
周辺施設一覧
- ショッピングセンター
- スーパー
- コンビニ
- ドラッグストア
- ホームセンター
- 飲食店
- その他店舗
- 商店街
- 大学
- 専門学校
- 高校・高専
- 中学校
- 小学校
- 保育園
- 幼稚園
- 公民館・児童館
- 病院
- 郵便局
- 役所
- 図書館
- 金融機関
- 警察・消防
- 趣味・娯楽施設
- 公園・運動施設
- 周辺の街並み
- 駅
- その他
お問い合せ先
- 株式会社ダブルオレンジ
- お電話でのお問い合わせは
042-514-8100「ホームページを見た」とお問い合わせください - 東京都日野市神明2-8-15
- 営業時間:9:00~19:00
- 定休日:火曜・水曜(祝祭日除く)
- 免許番号:東京都知事(3) 第97755号
- 株式会社ダブルオレンジ
- 土地をエリアから探す
- 日野市
- 石田
- 日野市石田1丁目 建築条件付き売地























































