- 株式会社ダブルオレンジ
- 新築一戸建てをエリアから探す
- 日野市
- 旭が丘
- 日野市旭が丘1丁目





担当スタッフより

- 江里俊一
- ●ZEH水準●豊田駅徒歩9分で通勤・通学に便利な立地●LDKは広々20帖超の4LDK+P●大家族でもゆったりと寛げる広さが魅力です。北東の角地に位置し解放感があります●スーパー、郵便局等お近くで住環境充実!
物件詳細情報
物件No.20000443627
| 所在地 | 東京都日野市旭が丘1丁目 | ||
|---|---|---|---|
| 交通 | 中央線「豊田」駅徒歩9分 京王線「平山城址公園」駅徒歩21分 |
||
| 間取 | 4LDK (LDK22.4帖、洋室5.2帖、洋室5.2帖、洋室8.1帖、洋室5.7帖) | ||
| 土地面積 | 106.79m² 公簿 | ||
| 建物面積 | 106.61m² 公簿 | ||
| 販売戸数 | 1戸 | 総戸数 | 全1戸 |
| 構造・規模 | 木造 2階建て | 築年・入居 | 2026年5月 |
| 建物現況 | 建築中 | 建築確認番号 | 第25UDI1W建11516号 |
| 駐車スペース | 2台 | 引渡時期 | 相談 |
| 地目 | 宅地 | 用途地域 | 第一種低層住居専用地域 |
| 建ぺい率 | 60% | 容積率 | 100% |
| 都市計画 | 市街化区域 | 権利種類 | 所有権 |
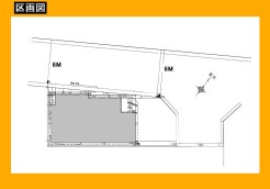
| 接道 | 北西側6M公道に接道 北東側6M公道に接道 |
小学校区 | 日野市立日野第六小学校(1320m) |
| 中学校区 | 日野市立日野第四中学校(1180m) | 取引態様 | 媒介 |
こだわり項目
始発駅角地緑豊かな住宅地閑静な住宅地LDK15帖以上床下収納全居室収納複層ガラス床暖房食器洗浄機浄水器システムキッチンカウンターキッチン温水洗浄便座浴室乾燥機浴室1坪以上浴室に窓ウォークインクローゼットTVモニタ付インターホン24時間換気システム保育園・幼稚園800m以内公園800m以内
- ※価格は物件の代金総額を表示しており、消費税が課税される場合は税込み価格です。(1,000円未満は切り上げ。)
税率は引き渡し時期により異なりますので、各物件の詳細につきましてはお問い合わせください。 - ※敷地権利が借地権のものは価格に権利金を含みます。
- ※制作中に内容が変更される場合もありますので、あらかじめご了承ください。
- ※購入の前には物件内容や契約条件についてご自身で十分な確認をしていただくようにお願いいたします。
- ※完成予想図はいずれも外構、植栽、外観等実際のものとは多少異なることがあります。
- ※CG合成の画像の場合、実際とは多少異なる場合があります。
周辺地図
周辺施設一覧
- ショッピングセンター
- スーパー
- コンビニ
- ドラッグストア
- ホームセンター
- 飲食店
- その他店舗
- 商店街
- 大学
- 専門学校
- 高校・高専
- 中学校
- 小学校
- 保育園
- 幼稚園
- 公民館・児童館
- 病院
- 郵便局
- 役所
- 図書館
- 金融機関
- 警察・消防
- 趣味・娯楽施設
- 公園・運動施設
- 周辺の街並み
- 駅
- その他
お問い合せ先
- 株式会社ダブルオレンジ
- お電話でのお問い合わせは
042-514-8100「ホームページを見た」とお問い合わせください - 東京都日野市神明2-8-15
- 営業時間:9:00~19:00
- 定休日:火曜・水曜(祝祭日除く)
- 免許番号:東京都知事(3) 第97755号





































